Your privacy is important to us. This website uses cookies to enhance user experience and to analyze performance and traffic on our website. By using this website, you acknowledge the real-time collection, storage, use, and disclosure of information on your device or provided by you (such as mouse movements and clicks). We may disclose such information about your use of our website with our social media, advertising and analytics partners. Visit our Privacy Policy and California Privacy Disclosure for more information on such sharing.

Log In

Our Brands

Helpful Tools

Search

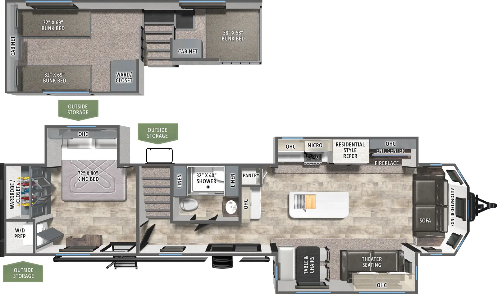
Explore 2026 Destination Trailers w/Loft 402LFT Floorplan

Hitch Weight
1,695 lb.
GVWR
13,900 lb.
UVW
11,849 lb.
CCC
2,051 lb.
Exterior Length
42' 10"
Exterior Height
13' 4"
Exterior Width
96"
Fresh Water
43 gal.
Gray Water
35 gal.
Black Water
35 gal.
Awning Size
21'

402LFT Floorplan Destination Trailers w/Loft Features & Options

    • (3) AC's
    • Smart TV
    • Tankless water heater
    • Washer/Dryer Prep
    • WIFI Prep
    • AM/FM/Bluetooth Stereo
    • Black Tank Flush
    • Patio Door
    • Residential-Style Refrigerator
    • 1.3 Cu Ft convection micro w/ airfryer
    • 24" Oven w/ 4-burner stove
    • ABS tub surround
    • TV Antenna w/ Booster & cable hookup
    • Bedroom TV hookup
    • Undermount sink w/ cover
    • High-rise faucet w/ sprayer
    • Bedspread
    • LED lighting
    • Congoleum Designer linoleum w/ 3-Year Cold Crack Warranty
    • Range hood
    • Folding grab handle
    • Night Roller Shades
    • Solid Surface Countertops
    • 50 AMP service
    • 5100 BTU Color Changing Fireplace
    • Tri-fold Sofa in Livingroom
    • Outside Shower
    • 12V Ceiling Fan in living room
    • 2 Exterior Speakers
    • 4 Stabilizer Jacks
    • 30LB Gas bottles & Cover
    • AlphaPly TPO Roof Membrane w/ Lifetime Warranty
    • Free-Standing Table & Chairs