Your privacy is important to us. This website uses cookies to enhance user experience and to analyze performance and traffic on our website. By using this website, you acknowledge the real-time collection, storage, use, and disclosure of information on your device or provided by you (such as mouse movements and clicks). We may disclose such information about your use of our website with our social media, advertising and analytics partners. Visit our Privacy Policy and California Privacy Disclosure for more information on such sharing.

Log In

Our Brands

Helpful Tools

Search

Explore Puma Vista

Home > Puma > Puma Vista
Puma Vista RVs

Explore Puma Vista

Puma Vista Destination Trailers

Enjoy vacation comfort in your Puma Vista Destination Model whether for a weekend or a week at the lake, in the mountains, or at your favorite campsite. The best in leisure living with several floorplans; two bedroom options, and a den option to accommodate whatever your family needs are. Residential style furnishings and a large master bedroom with a king size bed to ensure a comfortable and relaxing getaway.

Puma Vista Exterior Image
Follow Puma Vista on Social Media:

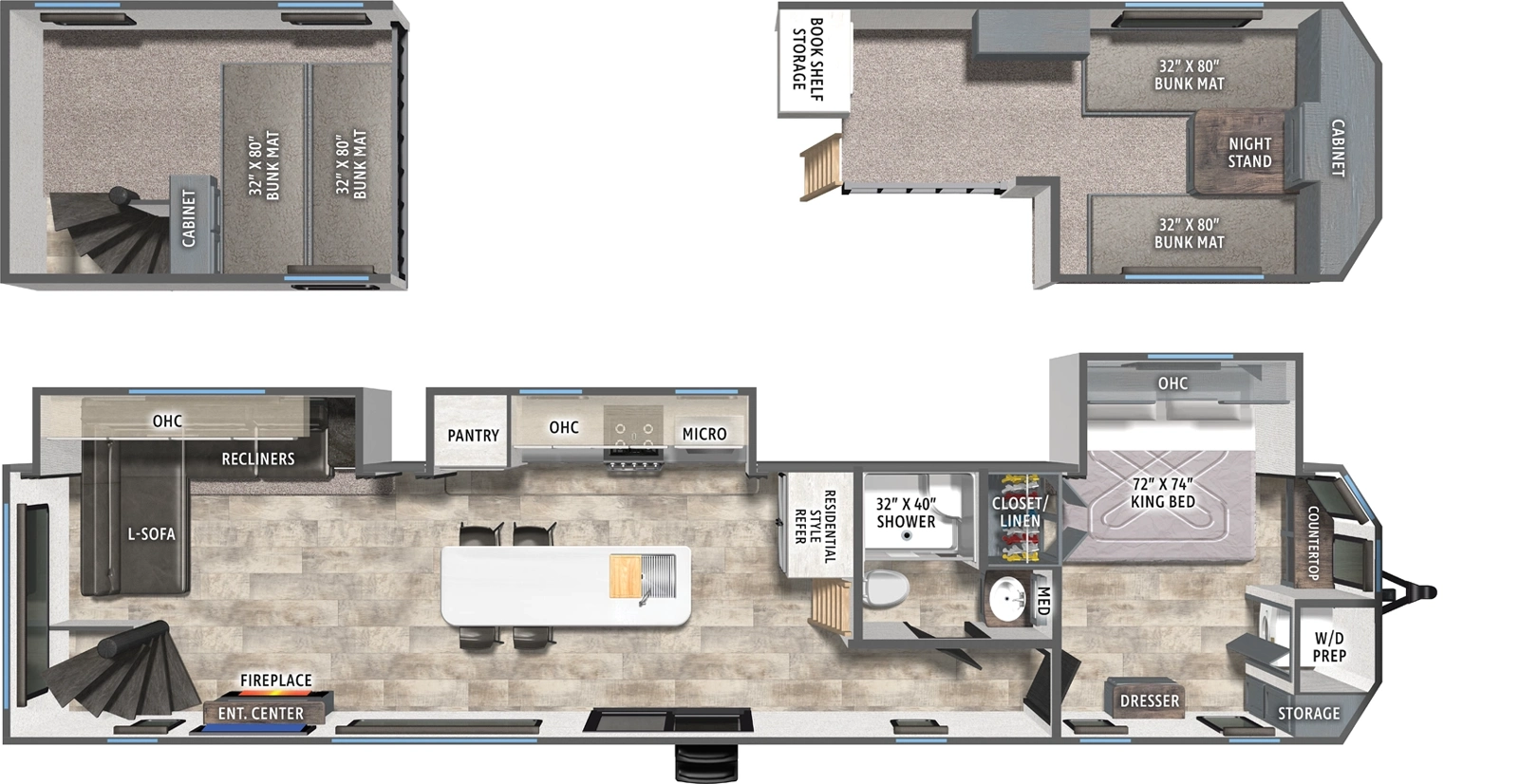
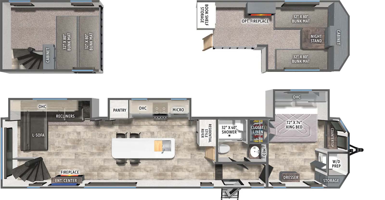
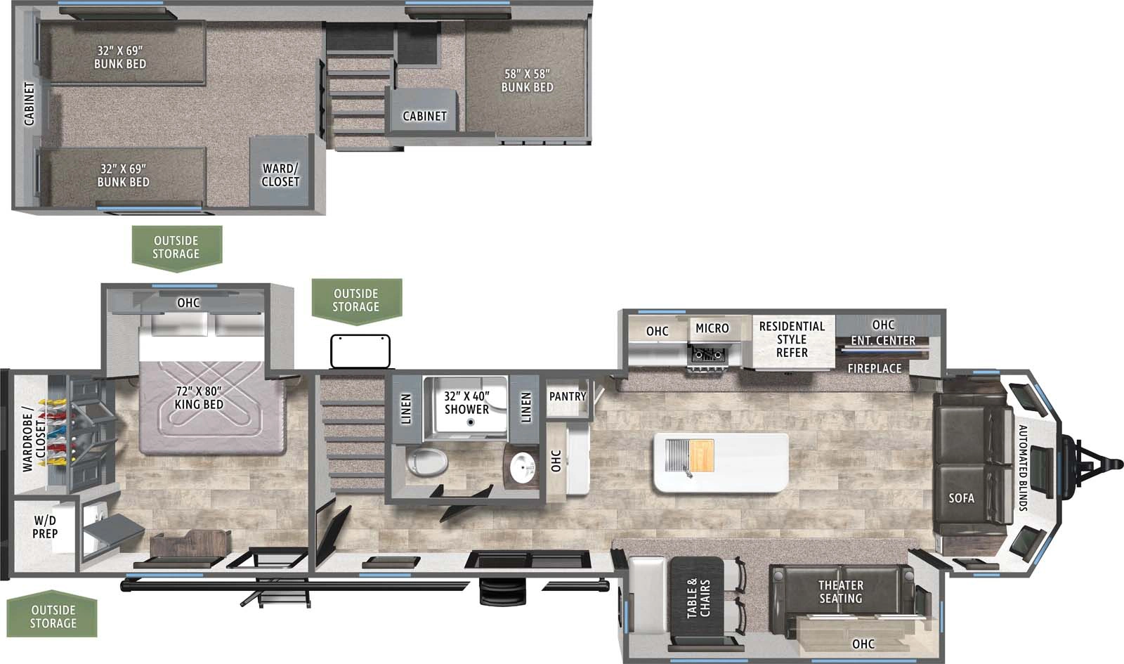
2026 Puma Vista Floorplans

Destination Trailers

Destination Trailers w/Loft

2026 Puma Vista Features & Options

    • Pre-wired for Solar System
    • Folding Grab handle
    • Night roller-shades
    • LED lighting
    • 18 CuFt Residential-Style Refrigerator
    • 1.3 Cu Ft convection Micro w/ airfryer
    • 24" Oven w/4-burner stove
    • Range hood
    • Congoleum Designer linoleum w/ 3-Year Cold Crack Warranty
    • Bedspread
    • Tankless Water Heater
    • Bedroom TV hookup
    • Living Room Smart TV
    • TV Antenna w/Booster & Cable hookup
    • ABS tub surround
    • AM/FM/Bluetooth Stereo
    • Undermount Sink w/ cover
    • High-rise faucet w/ sprayer
    • Black tank flush
    • Patio door
    • WIFI Prep
    • 4 Stabilizer jacks
    • 30LB Gas bottles & cover
    • 50 Amp service (2nd AC prep)
    • 15K BTU Ducted Low Profile w/ Heat Pump
    • Outside shower
    • Solid surface countertops
    • 12V Ceiling fan in living area
    • 2 Exterior speakers
    • 5100 BTU Elec. fireplace
    • Tri-fold sofa IPO jacknife in Living area
    • Free-Standing Table & Chairs
    • AlphaPly TPO Roof Membrane w/ Lifetime Warranty
    • (3) AC's
    • Smart TV
    • Tankless water heater
    • Washer/Dryer Prep
    • WIFI Prep
    • AM/FM/Bluetooth Stereo
    • Black Tank Flush
    • Patio Door
    • Residential-Style Refrigerator
    • 1.3 Cu Ft convection micro w/ airfryer
    • 24" Oven w/ 4-burner stove
    • ABS tub surround
    • TV Antenna w/ Booster & cable hookup
    • Bedroom TV hookup
    • Undermount sink w/ cover
    • High-rise faucet w/ sprayer
    • Bedspread
    • LED lighting
    • Congoleum Designer linoleum w/ 3-Year Cold Crack Warranty
    • Range hood
    • Folding grab handle
    • Night Roller Shades
    • Solid Surface Countertops
    • 50 AMP service
    • 5100 BTU Color Changing Fireplace
    • Tri-fold Sofa in Livingroom
    • Outside Shower
    • 12V Ceiling Fan in living room
    • 2 Exterior Speakers
    • 4 Stabilizer Jacks
    • 30LB Gas bottles & Cover
    • Free-Standing Table & Chairs
    • AlphaPly TPO Roof Membrane w/ Lifetime Warranty

Puma Vista Update Alerts

Please sign up below if you would like to receive notifications when we make updates to this brand. Or, if you only want updates on a particular floorplan, you can select to be updated on each one individually.