Your privacy is important to us. This website uses cookies to enhance user experience and to analyze performance and traffic on our website. By using this website, you acknowledge the real-time collection, storage, use, and disclosure of information on your device or provided by you (such as mouse movements and clicks). We may disclose such information about your use of our website with our social media, advertising and analytics partners. Visit our Privacy Policy and California Privacy Disclosure for more information on such sharing.

Log In

Our Brands

Helpful Tools

Search

Explore Cedar Creek Cottage Fifth Wheels

Home > Cedar Creek > Cedar Creek Cottage Fifth Wheels

Explore Cedar Creek Cottage Fifth Wheels

Cedar Creek Cottage Fifth Wheels RVs

Explore Cedar Creek Cottage Fifth Wheels

Cedar Creek Cottage Fifth Wheels

Cedar Creek’s groundbreaking Fifth Wheel Cottage maximizes living space with modern comfort. From its striking fiberglass exterior inspired by modern container homes to its massive living areas, chef-inspired kitchen, and cozy cabin-style master suite, every detail is crafted for the experienced camper.

Cedar Creek Cottage Fifth Wheels Exterior Image
Follow Cedar Creek Cottage Fifth Wheels on Social Media:

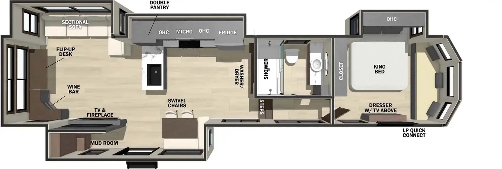
2026 Cedar Creek Cottage Fifth Wheels Floorplans

Cottage Destination Fifth Wheels

2026 Cedar Creek Cottage Fifth Wheels Features & Options

    • 101" Wide Body Frame
    • “True” Gelcoat Exterior
    • Cedar Creek’s Famous All Aluminum Superstructure on 16" Centers or less
    • 3M® Bonded Sidewalls
    • Hydraulic Front Jacks Only
    • 21,000 LB. Rhino Box Hitch
    • 4' x 6' ABS, Ribbed, Removable Underbelly Panels
    • AlphaPly TPO Roof Membrane featuring a Limited Lifetime Warranty - 40% Thicker
    • 12-Volt Heating Pads on All Black, Grey, & Fresh Water Tanks
    • 38" x 80" Friction Hinge, Black Glass Entry Door with New Entry Door Latch Extension
    • Individual Shut Off Valves - Kitchen and Bathroom
    • Nautilus P4 Multi-function Panel with Outside Shower, Black Tank Flush, 12 volt. Battery Disconnect
    • New Water Resistant, Bug Resistant Vixenite Slide Room floor panels
    • New Suburban ST-60 60,000 BTU Tankless Water Heater
    • One Year of ™ RV Roadside Assistance
    • Free Membership to Forest River Owners Group F.R.O.G.
    • 65" Smart TV with Backlighting in LR
    • 32" Smart Television in the BR
    • 12v Bluetooth Stereo Speaker in ceiling
    • New Travelfi™ Pay as you go internet
    • 200-watt Solar Panel
    • Stainless Steel Refrigerator with Ice Maker
    • 3 Burner Gas Oven with Pull-Out Pan Drawer
    • Vixeinite™ Flush Floor Slides in Kitchen and
    • Flush Floor Slides in Kitchen and Living Area
    • Residential-Style Kitchen Island with Solid Surface Counter with Flush Mount, Stainless Steel, Work Station Sink
    • Double Pull-out Pantry
    • Pull out Double Trash Bins
    • Pull Out Flatware Cylinders
    • Residential-Style Dovetail, Self-Closing Drawers, and Hidden Hinge Cabinet Doors
    • Stainless Steel, 30" Over the Range Microwave
    • Power Fan with Rain Sensor Override in Kitchen
    • Vinyl Floor Covering
    • Flip Down Breakfast Counter with 3 chairs (41FWC Only)
    • Matte Luxe Cabinets and Fascia
    • New 52" Ceiling Fan in the Living room
    • “L” Shaped Sofa (where applicable)
    • J-Lounge Sofa with Pull Out Trundle creating a Full Size Sleeping area (41FWC Only)
    • One Piece, Fiberglass Shower with glass doors, and Upgraded Shower Head
    • Large Vessel Sink, Bath Vanity with Backlit Mirror (Where Applicable)
    • 18" High Porcelain Toilet with Top Circular Flush System
    • Extra Storage for Linens
    • LED Night Lighting under the Vanity
    • Residential-Style Headboard with Luxurious Bedding Décor
    • Individual Reading Lighting above the Bed
    • USB Ports
    • Standard 72 x 80 King Bed
    • Flip-Up Dresser Top with Hidden Storage
    • Splendide Washer / Dryer Installed
    • 12V Motion lighting in the Closet
    • Slide Room Awning Toppers (All Available Slides)
    • 18' Exterior Power Awning
    • 2ND Power Awning (N/A on 413FWC)
    • 3RD A/C Unit
    • Heat Pump Air Conditioner in the Bedroom
    • 3 Sets of Stabilizer Jacks (Total of 6)
    • New Printed AION Gelcoated Exterior – Carbon, Coastal

Cedar Creek Cottage Fifth Wheels Update Alerts

Please sign up below if you would like to receive notifications when we make updates to this brand. Or, if you only want updates on a particular floorplan, you can select to be updated on each one individually.